Capannone di mq 250 in locazione a Trezzano sul Naviglio

Trezzano Sul Naviglio (Milano)

Rif: 250 buonarroti
Condividi Linkedin Whatsapp Stampa
€ 1.580
Affitto
Capannone industriale
260 Mq
4 Vani
Classe energetica E
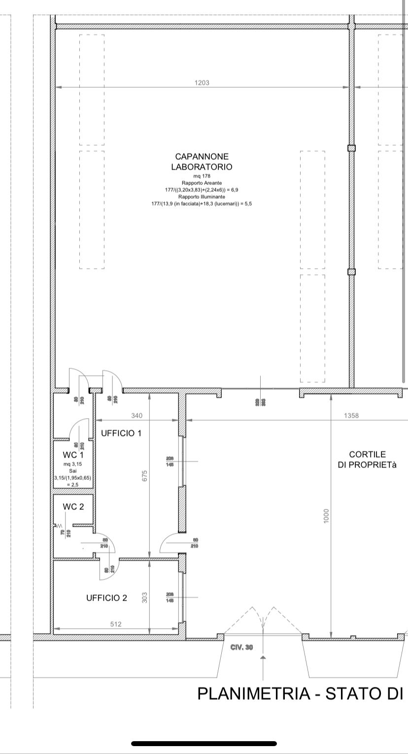
Capannone / magazzino di mq 250 circa molto luminoso, di cui mq 50 di uffici, si presenta in ottimo stato, completamente ristrutturato, copertura a falda h 5 sotto trave, tetto nuovo, ottima posizione, poche centinaia di metri dall'uscita della tangenziale e vicino al centro paese, cortile privato antistante di circa 100 mq, ampio passo carraio, no accesso bilico. l'immobile è fronte strada. L'immobile è disponibile in affitto, canone annuo, euro 19 000, no IVA. Ideale come capannone, magazzino, laboratorio e show room. Per maggiori informazioni contattare l'architetto Di Bisceglie Mattia al numero 338 76 05 370 o il dottor Di Bisceglie Franco al numero 331/2290902.
Gli uffici sono dotati di aria condizionata e pompa di calore, i bagni hanno uno scaldabagno elettrico. immobile di Prestigio e ottima immagine.
vicinissimo al centro di Trezzano, piazza san lorenzo.
Servizi offerti dalla nostra agenzia: Stesura contratti di locazione e preliminari, relativa registrazione. Assistenza finanziaria e supporto al Mutuo. Visura catastale e Ipotecaria. Valutazioni Gratuite. Gestione immobili Residenziali e industriali. Acquisto immobili tramite Asta. Gestione Capitali. Pratiche urbanistiche e catastali. Preventivi di Ristrutturazione. Direzione lavori Ristrutturazioni. APE. Perizie. Gestione immobili e manutenzione.

Dettaglio immobile

Contratto Affitto
Rif 250 buonarroti
Prezzo € 1.580
Provincia Milano
Comune Trezzano Sul Naviglio
Indirizzo Via Michelangelo Buonarroti 33
Superficie 260 mq
Vani 4
Classe energetica E (DL 90/2013)
EPgl,nren 65 kwh/m2 anno
Riscaldamento inesistente
Condizioni ottime condizioni
Ascensore no

Consistenze

Descrizione Superficie Sup. comm.
Principali
Capannone - piano terra 200 Mq 200 Mqc
Ufficio - piano terra 50 Mq 50 Mqc
Esterno - piano terra 100 Mq 10 Mqc
Totale 260 Mqc

Video

Planimetrie

Richiedi maggiori informazioni

Autorizzazione al trattamento dei dati personali+
Dichiaro di aver letto l'informativa sulla privacy ed accetto le condizioni d'utilizzo del servizio.
Riempi il campo con il codice riportato nell'immagine*
Codice Captcha
FIAIP
Chiamaci Contattaci